Schöne Dachgeschosswohnung mit Balkon und Tiefgarage in Herne-Eickel
44652 Herne / Wanne-Eickel Objekt-Nr.: ETW25/12135.000,00 €
Kaufpreis60.00m²
Wohnfläche2.00
ZimmerBaujahr: 1997
Zustand: GEPFLEGT
Courtage/Provision: 4,76 % Käuferprovision (inkl. MwSt.)
Beschreibung
Bei der hier angebotenen Wohnung handelt es sich um eine 60 qm große, schöne Dachgeschosswohnung
eines Mehrfamilienhauses aus dem Baujahr 1997, mit Dachterrasse und ein Tiefgaragenstellplatz.
Die Wohnung ist langzeitig vermietet und kann als Kapitalanlage erworben werden. Auf Wunsch der Mieterin werden keine Fotos der Räume veröffentlicht. Die Wohnung ist jedoch in einem sehr gepflegten Zustand.
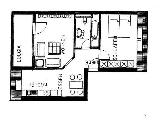
Die freundliche Diele ist der zentrale Punkt der Wohnung und geht fließend über zum Küchen- und Essbereich.
Die offene Raumgestaltung verschafft ein modernes und luftiges Ambiente.
Von hieraus gelangen Sie außerdem in den großzügigen, hellen Wohnbereich, in dem sich auch der Zugang zur Dachterrasse befindet. Die Dachterrasse bietet viel Platz für Familie und Freunde. Hier können Sie den Frühling und den Sommer ausgiebig genießen.
Das innenliegende Bad ist mit Badewanne und Dusche ausgestattet und deckenhoch und hell gefliest. Hier können Sie entscheiden, ob Sie duschen oder ein Bad nehmen wollen.
Das Schlafzimmer ist freundlich und verfügt über genügend Platz für entsprechende Möbel.
Zu guter Letzt gehört zu dieser Wohnung noch ein Kellerraum und ein Tiefgaragenstellplatz, welcher im Kaufpreis bereits inkludiert ist.
Alles in Allem kann man sagen, dass es sich bei dieser Wohnung um eine sehr schöne und gepflegte Kapitalanlage handelt.
Ausstattung
Beheizt wird das Objekt mit Fernwärme.
Zu dieser Wohneinheit gehört ein Kellerraum und Tiefgaragenstellplatz der separat mit einer Schiebetüranlage geschlossen werden kann.
Die Wohnung bietet eine Diele, Wohnzimmer, Dachterrasse, Bad mit Dusche und Badewanne,
Schlafzimmer und eine geräumigen Küche mit Essbereich.
Eine Gegensprechanlage ist vorhanden, somit haben ungebetene Gäste keinen Zutritt.
Das Bad ist hell und deckenhoch gefliest. Im Bad ist ebenfalls ein Waschmaschinenanschluss, lange Wege in den Kellerraum haben hiermit ein Ende gefunden.
Durch die vorhandenen Warm- und Kaltwassermengenzähler werden nur Ihre eigenen Verbrauchszahlen zu Grunde gelegt.
Die weißen Kunststofffenster sind isolierverglast und mit Kipp-/Drehbeschlägen versehen.
Ebenso verfügen sie über Rolläden die manuell betätigt werden können.
Die Elektroinstallation ist in einem einwandfreien Zustand, Schalter und Steckdosen sind in ausreichender Menge vorhanden.
Helle Bodenfliesen sind im Bad, Diele und Küche verlegt worden.
Im Wohnraum und im Schlafzimmer wurde Teppich verlegt.
Lage
Das Objekt liegt in einer ruhigen Nebenstraße im Herzen von Eickel.
Den Volksgarten Eickel erreichen Sie fußläufig in wenigen Minuten. Geschäfte des täglichen Bedarfs, Ärzte und Apotheken sind ebenfalls fußläufig schnell zu erreichen.
Herne ist eine Stadt im nördlichen Ruhrgebiet im Bundesland Nordrhein-Westfalen. Durch das Stadtgebiet Hernes führen die Bundesautobahnen A42 (Essen–Dortmund) und A43 (Münster–Wuppertal mit Anbindung zur A2).
Anbindungen zu angrenzenden Städten sind mit öffentlichen Verkehrsmitteln gut zu erreichen.
Die Herner Einkaufsmeile und der traditionelle Wochenmarkt sind ein Muss für jeden Herner. Lassen Sie einen Einkaufsbummel auf dem Boulevard mit einem gemütlichen Essen in den kleinen Restaurants oder mit einem Kinobesuch ausklingen.
Kulturell hat Herne einiges zu bieten. Ob ein Besuch im Landesmuseum für Archäologie, dem Kulturzentrum mit seinen wechselnden Veranstaltungen oder den diversen Kleinkunstbühnen und Theatern. Für jeden Geschmack ist etwas dabei.
Sonstige Angaben
Alle Angaben in diesem Exposé wurden sorgfältig und so vollständig wie möglich gemacht. Gleichwohl kann das Vorhandensein von Fehlern nicht ausgeschlossen werden. Die Angaben in diesem Exposé erfolgen daher ohne jede Gewähr. Maßgeblich sind die im Kaufvertrag geschlossenen Vereinbarungen. Soweit die Grundrissgrafiken Maßangaben und Einrichtungen enthalten, wird auch für diese jegliche Haftung ausgeschlossen. Ebenso weisen wir darauf hin, dass die Grundrissgrafiken nicht immer maßstabsgetreu sind. Besichtigungen sind jederzeit, jedoch nur nach vorheriger Terminabsprache mit Ihrem Ansprechpartner möglich. Kaufverhandlungen sind ausschließlich über Ihren Ansprechpartner zu führen. Preisänderungen bleiben vorbehalten.
Der Käufer zahlt im Erfolgsfall (Vermittlung/Kaufvertrag) an die Firma ImmoFinanzKonzept - Hermann-Löns-Str. 21 - 44623 Herne eine Käufer-Maklerprovision in Höhe von 4,76 % inkl. 19% MwSt.
Die Provision errechnet sich aus dem beurkundeten Kaufpreis. Die Provision ist nach Rechnungsstellung sofort fällig.
Widerrufsrecht
Sie haben das Recht, binnen vierzehn Tagen ohne Angabe von Gründen diesen Vertrag zu widerrufen.Die Widerrufsfrist beträgt vierzehn Tage ab dem Tag des Vertragsabschlusses. Um Ihr Widerrufsrecht auszuüben, müssen Sie uns ImmoFinanzKonzept, Hermann-Löns-Str. 21, 44623 Herne, Tel. 02323 / 919270-2, Fax 02323 / 919270-5, info@immofinanzkonzept.de mittels einer eindeutigen Erklärung (z.B. ein mit der Post versandter Brief, Telefax oder E-Mail) über Ihren Entschluss, diesen Vertrag zu widerrufen, informieren. Sie können dafür das beigefügte Muster-Widerrufsformular verwenden, das jedoch nicht vorgeschrieben ist.
Zur Wahrung der Widerrufsfrist reicht es aus, dass Sie die Mitteilung über die Ausübung des Widerrufsrechts vor Ablauf der Widerrufsfrist absenden.
Folgen des Widerrufs
Wenn Sie diesen Vertrag widerrufen, haben wir Ihnen alle Zahlungen, die wir von Ihnen erhalten haben, einschließlich der Lieferkosten (mit Ausnahme der zusätzlichen Kosten, die sich daraus ergeben, dass Sie eine andere Art der Lieferung als die von uns angebotene, günstigste Standardlieferung gewählt haben), unverzüglich und spätestens binnen vierzehn Tagen ab dem Tag zurückzuzahlen, an dem die Mitteilung über Ihren Widerruf dieses Vertrags bei uns eingegangen ist. Für diese Rückzahlung verwenden wir dasselbe Zahlungsmittel, das Sie bei der ursprünglichen Transaktion eingesetzt haben, es sei denn, mit Ihnen wurde ausdrücklich etwas anderes vereinbart; in keinem Fall werden Ihnen wegen dieser Rückzahlung Entgelte berechnet.
Hinweis auf die Möglichkeit eines vorzeitigen Erlöschens des Widerrufsrechts
Ihr Widerrufsrecht erlischt, wenn wir unsere Leistung vollständig erbracht haben und mit der Ausführung der Leistung erst begonnen haben, nachdem Sie Ihre ausdrückliche Zustimmung gegeben haben und gleichzeitig Ihre Kenntnis davon bestätigt haben, dass Sie Ihr Widerrufsrecht bei vollständiger Vertragserfüllung durch uns verlieren.
Muster-Widerrufsformular
(Wenn Sie den Vertrag widerrufen wollen, dann füllen Sie bitte dieses Formular aus und senden Sie es zurück.)
An: ImmoFinanzKonzept, Hermann-Löns-Str. 21, 44623 Herne, Fax: 02323 / 919270-5,
info@immofinanzkonzept.de:
Hiermit widerrufe(n) ich/wir (*) den von mir/uns (*) abgeschlossenen Vertrag über den Kauf der folgenden Waren (*)/ die Erbringung der folgenden Dienstleistung (*)
– Bestellt am (*)/ erhalten am (*):
– Name des/der Verbraucher(s):
– Anschrift des/der Verbraucher(s):
– Datum:
– Unterschrift des/der Verbraucher(s) (nur bei Mitteilung auf Papier):
(*) Unzutreffendes streichen.
Grundriss
Weitere Fotos


